North Baddesley 
  
 
 
 
 North Baddesley
 
  
 
 
    Completed project 
 
 
  Completed project
 
 
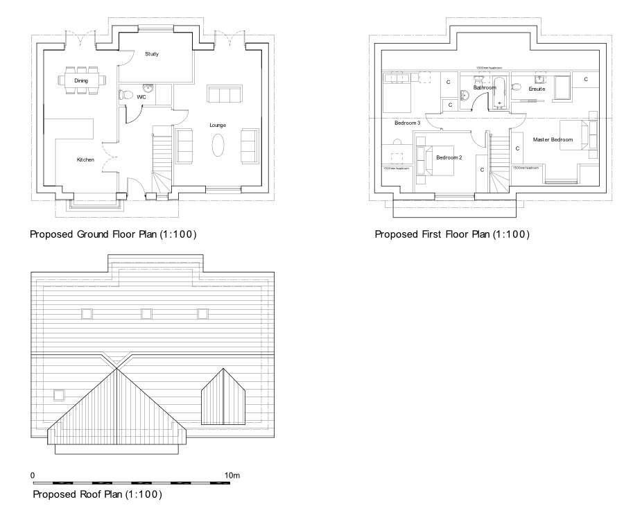
Pre- Application submitted for this lovely site. Retention of the existing bungalow with two new chalet bungalows in the extensive gardens. More to follow in the coming months.
 
 Planning submitted to Test Valley Borough Council under reference 18/01124/FULLS for retention of the existing with the addition of two new detached chalet bungalows. Decision due at the end of June.

 
  
 





